Top.Mail.Ru

Проект дома HT-312-2

Цена проекта от:
24 387 216 ₽
В кредит от 321 128 ₽/ мес. Кредит от Дом Клик и ДОМ РФ
Площадь помещений
401 м2
Летние помещения Летние помещения
89 м2
Материал стен
Камень
Размер дома
23.2 x 16.3 м
Этажность
2
Гараж
с гаражом на 2 машины
Количество спален
4
Количество санузлов
3
Терраса
с террасой
Бассейн
с бассейном
Получить смету
Консультация по строительству:
+7 (499) 955-47-14
Описание

  • Дом свыше 300 кв.м. — это очень просторный дом для реализации ваших идей!
  • Двухэтажный дом — классическое решение для загородного дома. Два этажа позволяют легко разделить жилое пространство на функциональные зоны.
  • Проекты домов из газоблока подходят к большинству загородных участков и частных домовладений.
  • Дома в современном стиле обычно разрабатываются с учетом функциональности и эффективного использования пространства. Они предлагают хорошо продуманные планировки, оптимизированные для современного образа жизни. Это может включать открытые планировки, многофункциональные помещения, интегрированные системы хранения и другие элементы, которые делают жизнь в доме более комфортной и практичной.
  • Размеры дома составляют 23,2 на 16,3 метров.
  • Проект дома с гаражом на 2 машины — прекрасный, функциональный дом, ведь два автомобиля на одну семью — это уже не роскошная жизнь, а обыденность.
  • Плоская крыша облегчает доступ к различным частям здания, таким как вентиляционные системы, солнечные панели, кондиционеры и другое оборудование. Это упрощает обслуживание и обследование таких систем, что может быть удобным и экономически выгодным для владельцев дома.
  • Терраса увеличивает полезную площадь дома. Ее можно использовать как летнюю столовую, зону для отдыха или барбекю.

Читать далее

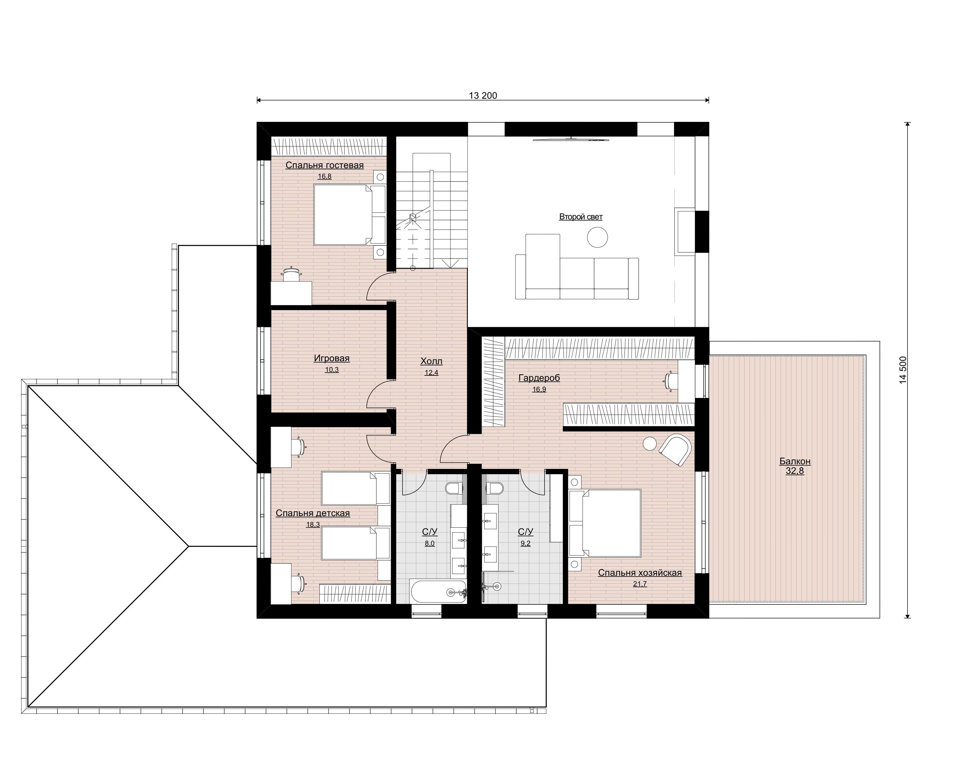
Планировка
Каменные дома HT-312-2
1 этаж
Каменные дома HT-312-2
2 этаж
Комплектация
Мы подобрали оптимальное решение для данного проекта. Если затрудняетесь с выбором, то свяжитесь с нами удобным для вас способом и мы подскажем самый выгодный вариант для Вас.
Комплектация
Можно изменить комплектацию и получить детальную смету
Коробка дома
24 387 216
Срок строительства:4 месяца
Дом с тепловым контуром
Срок строительства:6 месяцев
Дом под чистовую отделку
Срок строительства:12 месяцев
Фундамент
Свайно-ростверковый
+
+
+
Стены
Газоблок/керамоблок
+
+
+
Перекрытия
Монолитная плита
+
+
+
Кровля
ПВХ-мембрана
+
+
+
Внутренние перегородки
Кирпич 120мм
-
+
+
Фасад
Штукатурка
-
+
+
Окна
ПВХ 4-х камерные Rehau
-
+
+
Двери
Входные двери
-
+
+
Инженерные коммуникации
-
-
+
Черновая отделка
-
-
+
Не знаете с чего начать?
Получите консультацию инженера-проектировщика
Нажимая на кнопку, вы соглашаетесь с обработкой ваших персональных данных

Что может повлиять на стоимость?

Подготовка участка к строительству – очень важный момент при составлении сметы. Иногда его особенности и расположение могут привести к дополнительным расходам.
Перепады на участке, грунты, грунтовые воды
Объем подготовительных строительных работ
Изменение конструктива и материалов
Расположение объекта

Категории проекта


«Брикхаус»
БЦ Парк Легенд, Автозаводская, 23А к.2 Москва ,
+7 (495) 792-75-83 , smeta@b-h-c.ru
У вас остались вопросы?
Закажите обратный звонок
Нажимая на кнопку, вы соглашаетесь с обработкой ваших персональных данных
Или позвоните по нашему телефону и менеджер ответит на все ваши вопросы:
+7 (495) 792-75-83