Top.Mail.Ru

Проект дома HT-163

Цена проекта от:
9 913 008 ₽
В кредит от 130 533 ₽/ мес. Кредит от Дом Клик и ДОМ РФ
Площадь помещений
163 м2
Летние помещения Летние помещения
36 м2
Материал стен
Камень
Размер дома
22.1 х 6.1 м
Этажность
2
Гараж
без гаража
Количество спален
2
Количество санузлов
3
Терраса
с террасой
Автонавес
с автонавесом
Получить смету
Консультация по строительству:
+7 (499) 955-47-14
Описание

  • Дом от 100 до 200 кв.м. подойдет для семьи из 5-6 человек.
  • Двухэтажный дом позволяет снизить себестоимость квадратного метра.
  • Газоблок — самый популярный сегодня материал для строительства загородного дома. Дома из газоблока быстро строятся и при определенной толщине блока не нуждаются в дополнительном утеплении.
  • Современные дома отличает минимализм и практичные планировочные решения. Для них также характерны панорамное остекление и комбинированные фасады.
  • Размеры дома составляют 22,1 на 6,1 метров.
  • Дом без гаража предоставляет большую гибкость использования. Вы можете адаптировать это пространство под свои потребности, будь то дополнительная комната для гостей, спортивный зал, рабочий кабинет или студия.
  • Дома с плоской крышей характерны для стиля хай-тек. Эксплуатируемую плоскую кровлю можно использовать как террасу.
  • Терраса создает чувство единения с природой.

Читать далее

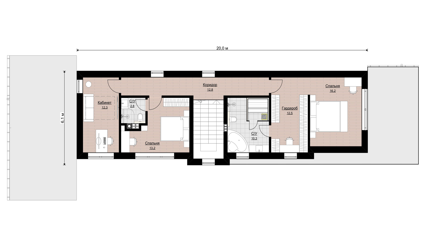
Планировка
Дома хай-тек HT-163
1 этаж
Дома хай-тек HT-163
2 этаж
Комплектация
Мы подобрали оптимальное решение для данного проекта. Если затрудняетесь с выбором, то свяжитесь с нами удобным для вас способом и мы подскажем самый выгодный вариант для Вас.
Комплектация
Можно изменить комплектацию и получить детальную смету
Коробка дома
9 913 008
Срок строительства:4 месяца
Дом с тепловым контуром
Срок строительства:6 месяцев
Дом под чистовую отделку
Срок строительства:12 месяцев
Фундамент
Свайно-ростверковый
+
+
+
Стены
Газоблок/керамоблок
+
+
+
Перекрытия
Монолитная плита
+
+
+
Кровля
ПВХ-мембрана
+
+
+
Внутренние перегородки
Кирпич 120мм
-
+
+
Фасад
Штукатурка
-
+
+
Окна
ПВХ 4-х камерные Rehau
-
+
+
Двери
Входные двери
-
+
+
Инженерные коммуникации
-
-
+
Черновая отделка
-
-
+
Не знаете с чего начать?
Получите консультацию инженера-проектировщика
Нажимая на кнопку, вы соглашаетесь с обработкой ваших персональных данных

Что может повлиять на стоимость?

Подготовка участка к строительству – очень важный момент при составлении сметы. Иногда его особенности и расположение могут привести к дополнительным расходам.
Перепады на участке, грунты, грунтовые воды
Объем подготовительных строительных работ
Изменение конструктива и материалов
Расположение объекта

Категории проекта


«Брикхаус»
БЦ Парк Легенд, Автозаводская, 23А к.2 Москва ,
+7 (495) 792-75-83 , smeta@b-h-c.ru
У вас остались вопросы?
Закажите обратный звонок
Нажимая на кнопку, вы соглашаетесь с обработкой ваших персональных данных
Или позвоните по нашему телефону и менеджер ответит на все ваши вопросы:
+7 (495) 792-75-83